Terzo piano
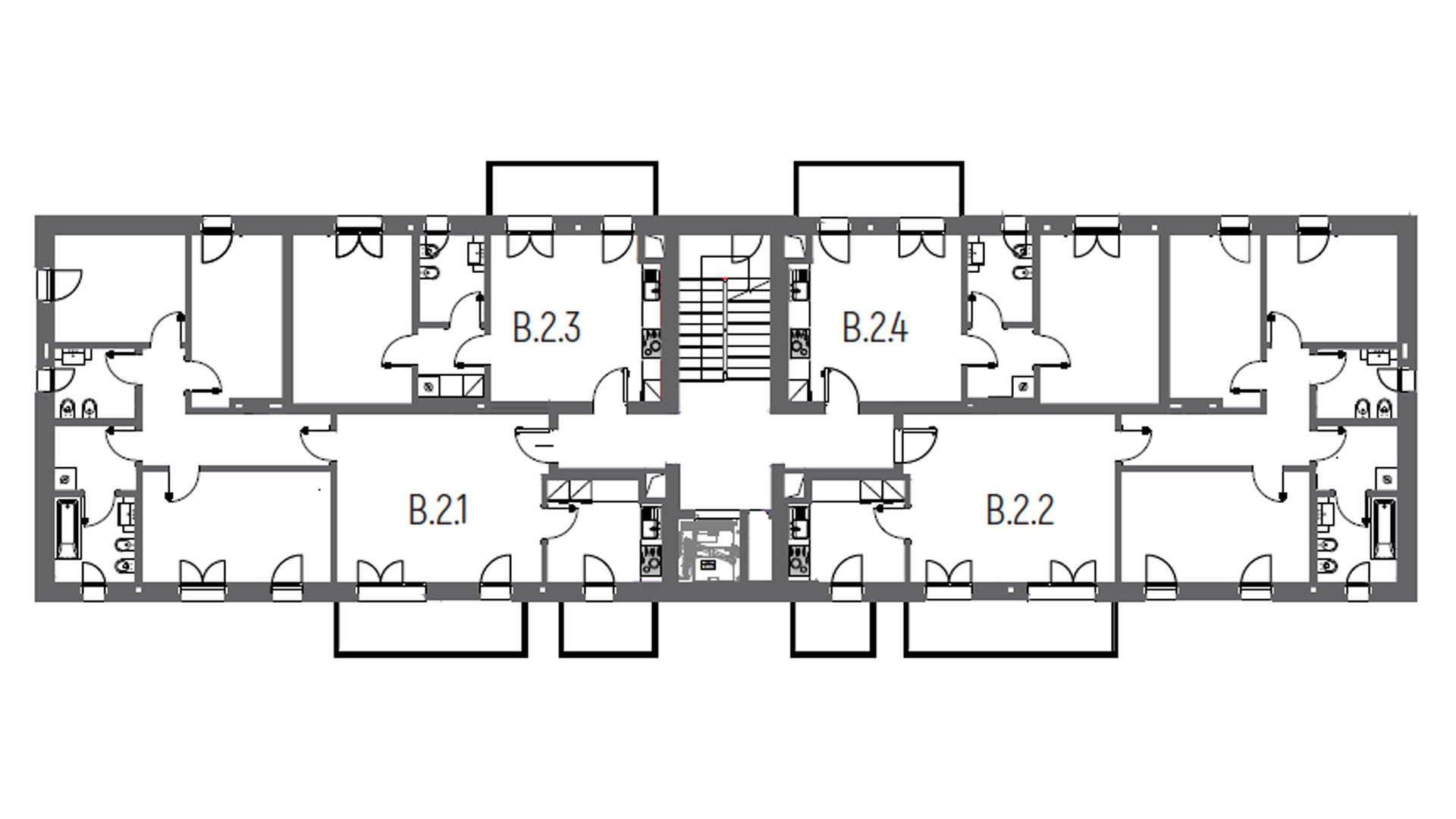
Secondo piano
Primo piano
Piano terra